In Vendita

Attico In Vendita a Giarre

Giarre - delle Provincie, 0
Codice: 202
250.000 €
240 m²
Superficie
8
Locali
3
Bagni
2
Box auto
Descrizione
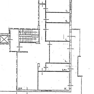
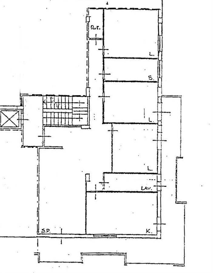
APPARTAMENTO+SOTTOTETTO SUPERIORE+GARAGE DI 60 MQ (rif. 202) Giarre in zona centralissima e a poca distanza dal casello autostradale, in zona servita da scuole, supermercati e servizi vari, si propone in vendita in un elegante stabile condominiale un luminoso e panoramico appartamento di 5 vani per una grandezza di 140 mq circa, sito al piano quarto, balconato doppia esposizione Etna-mare. Nei dettagli l’appartamento è composto da un bellissimo salone doppio all’ingresso, ampia cucina abitale adiacente al salone, tre camere da letto, bagno e lavanderia. Ben tenuto e in ottime condizioni generali. A ciò si aggiunge un bellissimo sottotetto di 3 vani e servizi (locale di sgombero) sito al piano superiore, raggiungibile separatamente da scala condominiale e con terrazzino panoramico mare Etna; compreso nel prezzo anche un comodissimo garage di 60 mq circa per 4 auto. Rif. : 202.
Caratteristiche
Codice:
202
Città:
Giarre
Categoria:
Attico
Spese condominiali:
600 € / anno
Locali:
8
Bagni:
3
Mq:
240
Mq calpestabili:
220
Box auto:
2
Mq Box:
60
Posti auto:
1
Balconi:
1
Terrazzi:
1
Piano:
4
Classe energetica:
G
Stato Immobile:
Buono
Orientamento:
Nord Ovest Sud Est
Riscaldamento:
Autonomo
Accessori
Ascensore
Planimetria
1 / 2
2 / 2
Mappa
Giarre - delle Provincie, 0
Attiva i cookies e ricarica la pagina per visualizzare il contenuto
Cookie preference