In Vendita

4 o più locali In Vendita a Giarre

Giarre - delle Provincie, 0
Codice: 202 gr
159.000 €
142 m²
Superficie
5
Locali
2
Bagni
2
Box auto
Descrizione
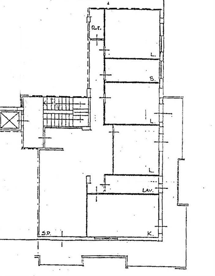
APPARTAMENTO+GARAGE DI 60 MQ (rif. 202)
Giarre in zona centralissima e a poca distanza dal casello autostradale, in zona servita da scuole, supermercati e servizi vari, si propone in vendita in un elegante stabile condominiale un luminoso e panoramico appartamento di 5 vani per una grandezza di 140 mq circa, sito al piano quarto, balconato doppia esposizione vista Etna-mare. Nei dettagli l’appartamento è composto da un bellissimo salone doppio all’ingresso, ampia cucina abitale adiacente al salone, tre camere da letto, bagno e lavanderia. Ben tenuto e in ottime condizioni generali; compreso nel prezzo anche un comodissimo garage di 60 mq circa per 4 auto.
Rif. : 202.
Caratteristiche
Codice:
202 gr
Città:
Giarre
Categoria:
4 o più locali
Spese condominiali:
600 € / anno
Locali:
5
Bagni:
2
Mq:
142
Mq calpestabili:
140
Box auto:
2
Mq Box:
60
Mq Giardino:
1
Balconi:
1
Piano:
4
Classe energetica:
G
Stato Immobile:
Ristrutturato
Orientamento:
Nord Ovest Sud Est
Giardino:
Comune
Riscaldamento:
Autonomo
Accessori
Ascensore
Planimetria
1 / 2
2 / 2
Mappa
Giarre - delle Provincie, 0
Attiva i cookies e ricarica la pagina per visualizzare il contenuto
Cookie preference