In Vendita

Capannone In Vendita a Giarre

Giarre
Codice: 222
750.000 €
7000 m²
Superficie
3
Locali
Descrizione
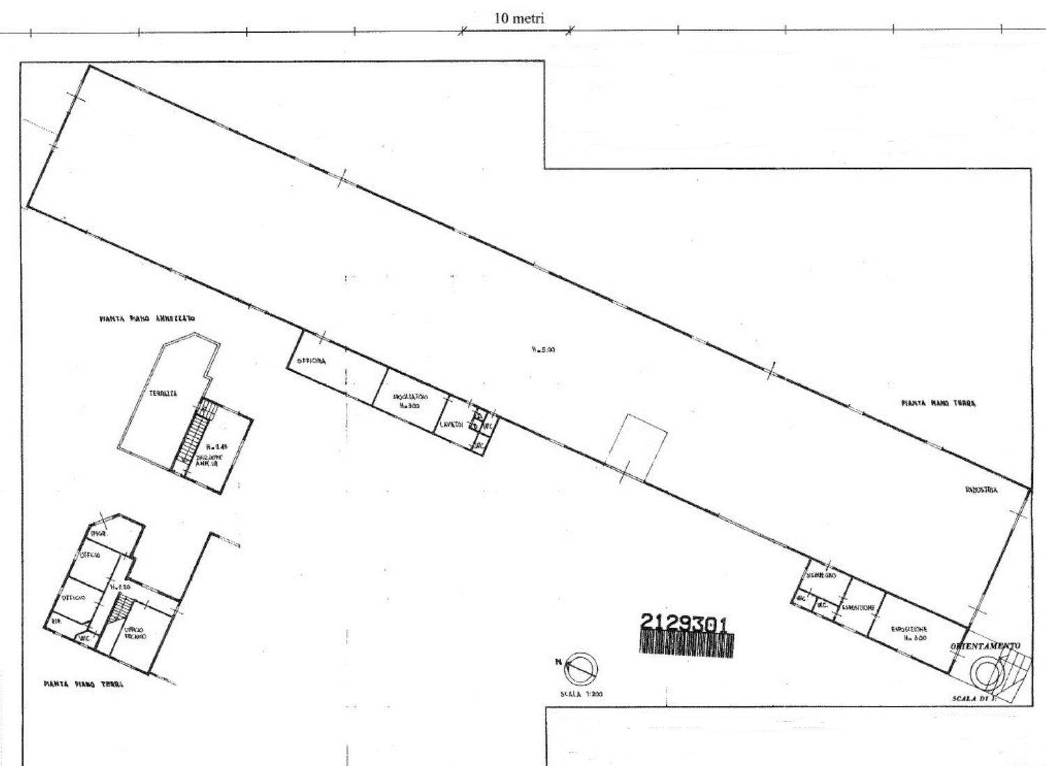
Giarre, zona centrale a soli 2 km circa dal casello autostradale di Giarre, si propone in vendita un capannone industriale di mq 1.500 con piazzale di mq 5.500. Il capannone è realizzato su unica elevazione di altezza interna pari a mt 5,00, compresa zona uffici di circa mq 80 con ammezzato.
Inquadramento urbanistico zona territoriale omogenea: lotto di terreno ricadente in parte in zona “C3”, parte in zona edificabile “B5”, piccola parte a parcheggio e sede stradale.
Categoria catastale D/7
Rif: 222
Per maggiori informazioni, contattare Maurizio Musumeci anche tramite WhatsApp.
Caratteristiche
Codice:
222
Città:
Giarre
Categoria:
Capannone
Locali:
3
Mq:
7000
Mq calpestabili:
1500
Posti auto:
10
Piano:
Terra
Classe energetica:
In fase di valutazione
Stato Immobile:
Da Ristrutturare
Planimetria
1 / 1
Cookie preference