In Vendita

Capannone In Vendita a Giarre

Giarre - Giuseppe Ungaretti, 0
Codice: 222/B
600.000 €
7000 m²
Superficie
1
Locali
1
Bagni
Descrizione
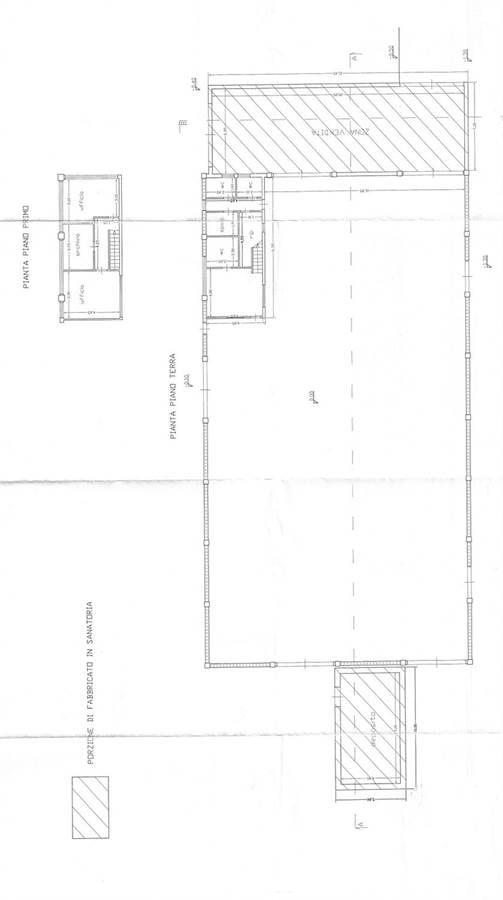
Giarre pressi casello autostradale si propone in vendita un esclusivo capannone industriale categoria D/1 di 1000 mq circa dotato di zona uffici e bagni e con 6000 mq circa di piazzale esterno. Contattaci per ulteriori informazioni o per concordare un sopralluogo.
Rif. : 222/B.
Caratteristiche
Codice:
222/B
Città:
Giarre
Categoria:
Capannone
Locali:
1
Bagni:
1
Mq:
7000
Mq calpestabili:
1000
Piano:
Terra
Classe energetica:
G
Stato Immobile:
Buono
Planimetria
1 / 1
Mappa
Giarre - Giuseppe Ungaretti, 0
Attiva i cookies e ricarica la pagina per visualizzare il contenuto
Cookie preference