In Vendita

Villa In Vendita a Giarre

Giarre - Carlo Parisi, 0
Codice: 30844373
345.000 €
300 m²
Superficie
8
Locali
3
Bagni
2
Box auto
Descrizione
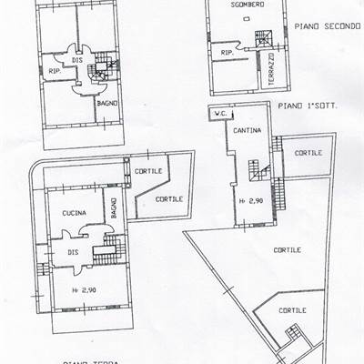
Villa Singola in Vendita a Macchia di Giarre Scopri questa splendida villa singola situata nella tranquilla località di Macchia, Giarre. A pochi passi dai servizi commerciali e dalle scuole, questa proprietà offre una posizione ideale per famiglie e professionisti. La villa si trova a soli 1,5 km dal casello autostradale di Giarre, garantendo facili collegamenti con le principali arterie stradali. Con una superficie totale di circa 290 mq, la villa è distribuita su più livelli. Al piano terra trovi un ampio salone, una cucina moderna, uno studio e un bagno. Al primo piano, tre camere da letto e il bagno offrono spazio e comfort, con la camera principale dotata di una cabina armadio. Il sottotetto rifinito al piano superiore aggiunge ulteriore spazio abitabile. La proprietà include un ampio garage e una cantina, perfetti per lo stoccaggio e il parcheggio. Il giardino e il cortile di circa 250 mq offrono un'oasi di tranquillità per momenti di relax e convivialità. Le ottime finiture e le condizioni pari al nuovo rendono questa villa perfetta per chi cerca un'abitazione moderna e confortevole. L'immobile è adatto per persone con mobilità ridotta grazie all'accesso molto agevole. Non perdere l'opportunità di vivere in questa meravigliosa villa! Chiama per concordare una visita. Rif. 236.
Caratteristiche
Codice:
30844373
Città:
Giarre
Categoria:
Villa
Locali:
8
Bagni:
3
Mq:
300
Mq calpestabili:
300
Box auto:
2
Mq Box:
44
Posti auto:
2
Mq Giardino:
250
Balconi:
1
Classe energetica:
F
Stato Immobile:
Ristrutturato
Orientamento:
Nord Ovest Sud Est
Riscaldamento:
Autonomo
Accessori
Aria Condizionata
Planimetria
1 / 2
2 / 2
Mappa
Giarre - Carlo Parisi, 0
Attiva i cookies e ricarica la pagina per visualizzare il contenuto
Cookie preference