In Vendita

4 o più locali In Vendita a Giarre

Giarre - Giacomo Matteotti, 0
Codice: Cod M 2
210.000 €
280 m²
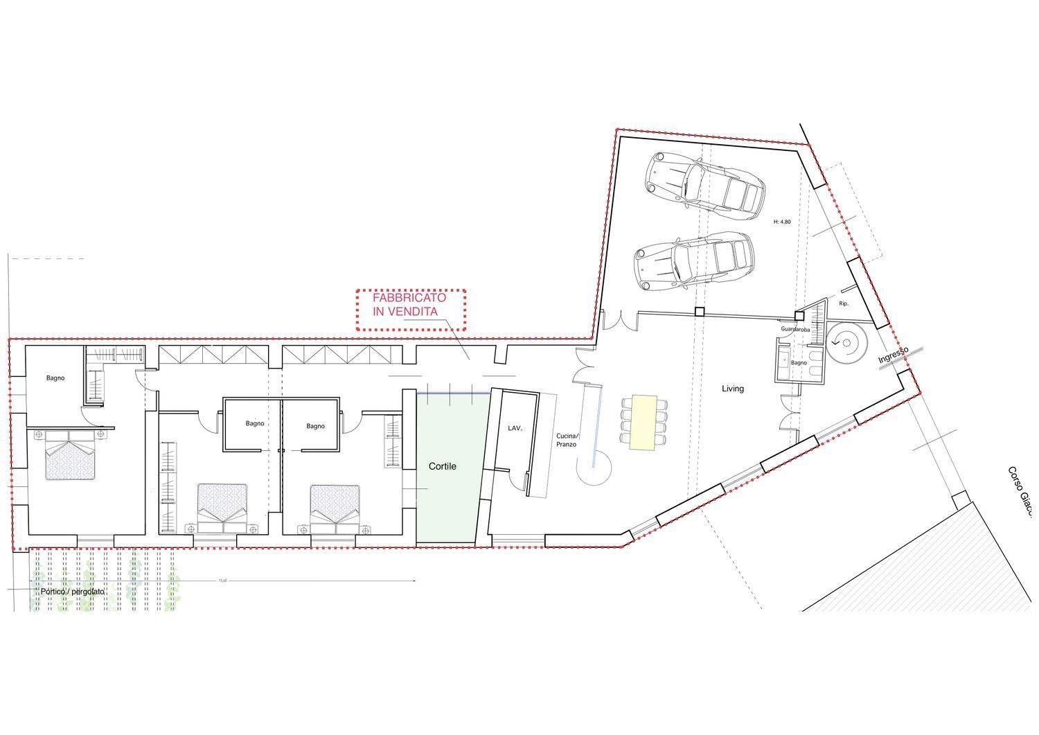
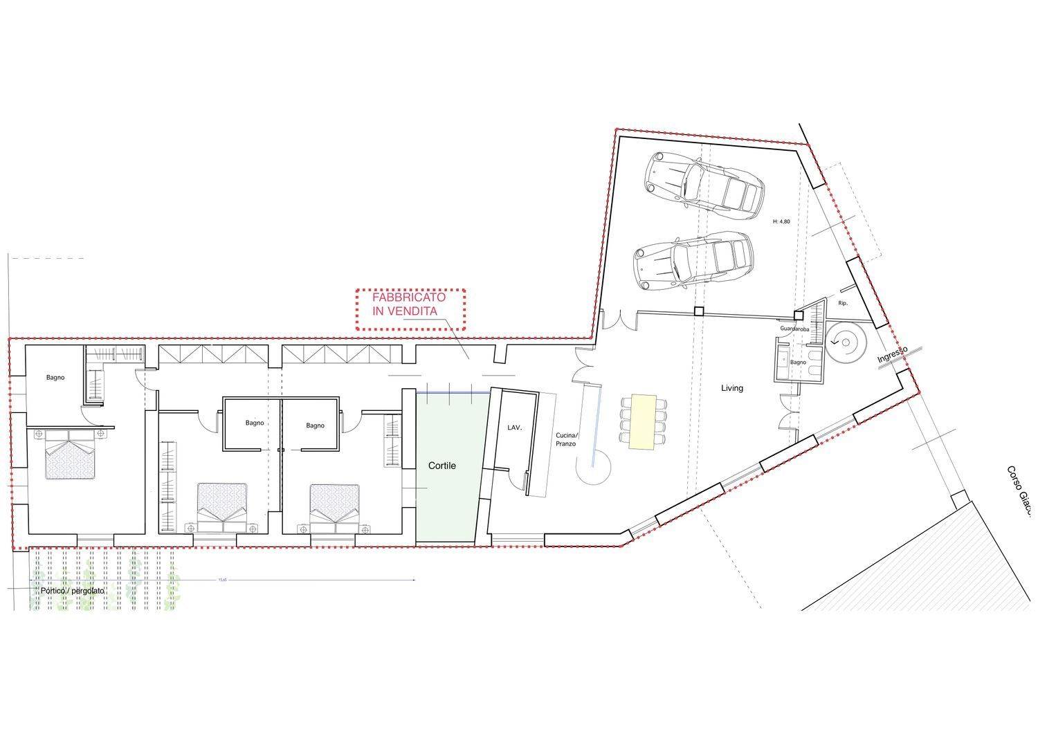
Superficie
6
Locali
3
Bagni
2
Box auto
Descrizione
Locale per realizzazione di un Appartamento su unico livello a Giarre centro o possibilità anche di poter variare il tutto in una soluzione commerciale o attività come Palestra o di altro genere. Scopri un'opportunità unica nel cuore di Giarre! Questo ampio locale da ristrutturare per la realizzazione di un eventuale appartamento offre un potenziale illimitato per creare la casa dei tuoi sogni. Situato al piano terra, l'immobile si sviluppa su un unico livello e vanta un grande terrazzo sovrastante di oltre 200 mq, perfetto per godere della vista mozzafiato sull'Etna. L'interno può essere composto da una luminosa ed ampia zona living formata da salone con cucina a vista, tre camere da letto con bagni privati, una lavanderia e un ripostiglio, oltre ad un cortiletto. Con un garage di circa 45 mq a livello strada, il parcheggio non sarà mai un problema. La posizione centrale rende questo progetto per l'appartamento ideale sia come residenza principale che come casa vacanza. È possibile averlo chiavi in mano con un sovrapprezzo per i lavori di ristrutturazione, o con il progetto di adeguamento già approvato, o al prezzo pubblicizzato nello stato attuale. Non perdere l'occasione di trasformare questo spazio in un rifugio esclusivo nel centro di Giarre! Prezzo: € 210.000, 00 nello stato attuale. Classe energetica: G.
Caratteristiche
Codice:
Cod M 2
Città:
Giarre
Categoria:
4 o più locali
Locali:
6
Bagni:
3
Mq:
280
Mq calpestabili:
260
Box auto:
2
Mq Box:
45
Terrazzi:
1
Piano:
Terra
Anno:
1970
Classe energetica:
G
Stato Immobile:
Da Ristrutturare
Orientamento:
Nord Ovest Sud
Planimetria
1 / 4
2 / 4
3 / 4
4 / 4
Mappa
Giarre - Giacomo Matteotti, 0
Attiva i cookies e ricarica la pagina per visualizzare il contenuto
Cookie preference